



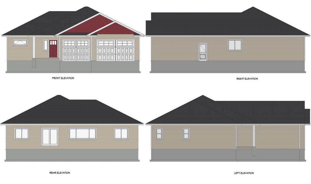
A great new build, in the Highland Meadows subdivision, developed by Bald Eagle Land and designed by Ryan Werner. This modern open-concept home, currently under construction, with 3 bed/2 bath is set to be a standout property in the area. Located in a prime location near East Helena schools and public open space, this home offers both tranquility and convenience. This home represents a unique chance to be part of an exciting new development. We’re here to guide you through the process and help you make this exceptional property your own.